архитектор М. Лазуткин
choose language
2019г. Гостиница
Гостиница повышенной комфортности с элементами апарт-отеля.
Должность: Соло-архитектор (главный и единственный архитектор проекта)
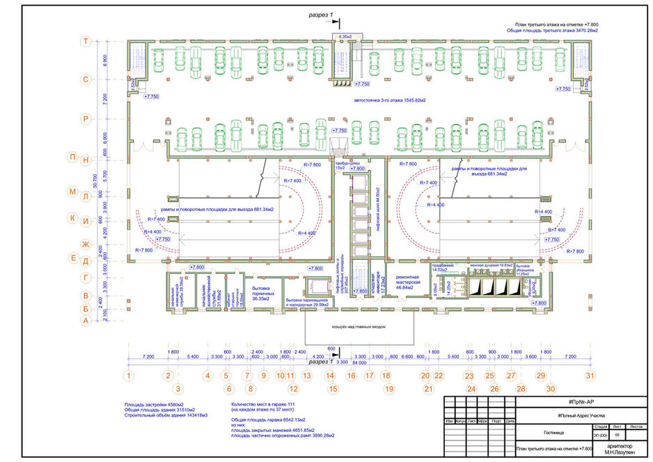
Особенности проекта: Все номера гостиницы оборудованы встроенной кухней, что позволяет предоставлять услуги не только гостиницы, а и апарт-отеля. Гостиница имеет 2 ресторана каждый на 50-60 мест, 2 бара, и 2 летних бара на открытых площадках-балконах. Гостиница имеет 4 класса номеров: Студия, Апартамент и Суит(suite), а два верхних жилых этажа заняты двухэтажными номерами повышенной комфортности класса "пентхаус". Гостинца имеет фитнес-центр, расположенный между жилой частью и ресторанами. Встроенный гараж обеспечивает машиноместом каждый номер (кроме 4-х) . Места в гараже обеспечивают стоянку крупных легковых авто шириной 220см между кончиков зеркал. Уклоны и радиусы рамп соответствует требованиям Policy on Geometric Design of Highways and Streets 6th edition (USA), что обеспечивает условия безопасного маневрирования для крупногабаритных джипов и седанов. Гостиница имеет разгрузочную площадку с переменной высотой, обеспечивающую погрузочно-разгрузочные работы как для малотоннажных (Газель) так и для обычных грузовиков, имеющих длину 9м.
Ниже представлены: Планировки жилой части, чертежи и иллюстрации; Планы всех этажей включая рестораны, фитнес-центр, гараж, админ-бытовую часть и другое; Фасады и разрезы.
Планировки всех типов номеров
Двухэтажные номера повышенной комфортности"пентхаусы"
Планы этажей, включая рестораны, гараж, фитнес-центр, админ-бытовую часть и другие
Фасады и разрезы























































